$1,065.00 / month
Available 4/15/2026
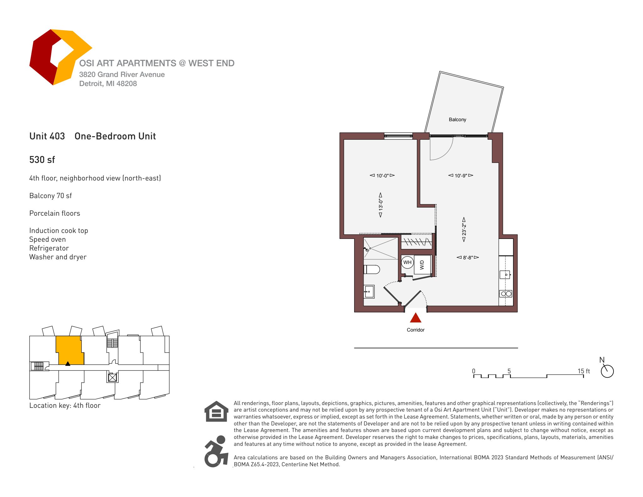
- 1 Bed
- 1 Bath
- 530 sqft
Lease Terms
$1,065.00 security deposit