OSIArtApartments.managebuilding.com

OSIArtApartments.managebuilding.com

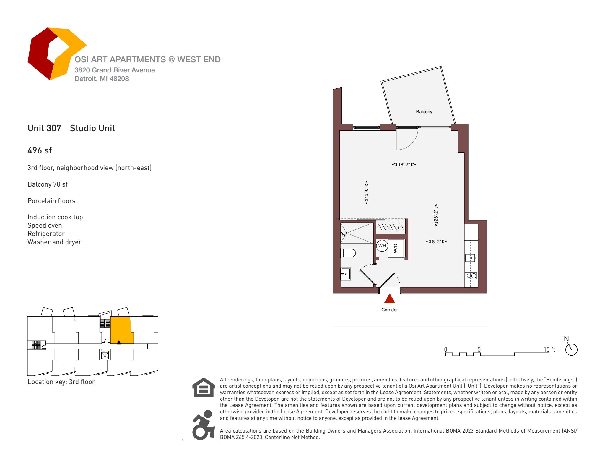
Rentals » 3820 Grand River Avenue Detroit, MI 48208

3820 Grand River Avenue Detroit, MI 48208

$999.00 / month
Available 4/15/2026
  • Studio
  • 1 Bath
  • 496 sqft

Lease Terms

$999.00 security deposit

Rental Application

Interested in one of our properties?

Apply online